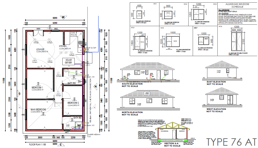
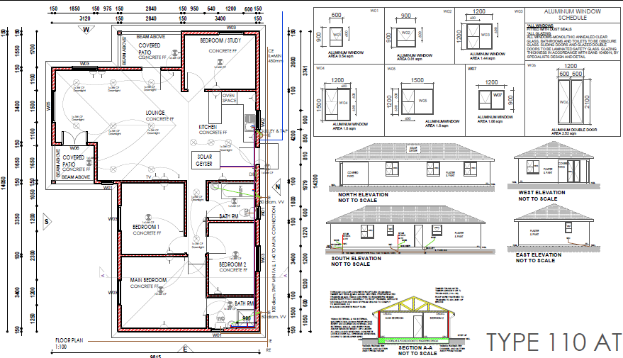
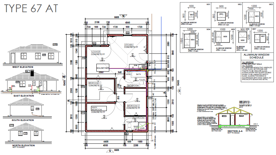
Dawn City

Dawn City Floor Plan options are Based on the Size of the house with a Tuscan Design Roof, house sizes are from 58sqm to 113sqm respectively

Gallery